AVAdek Logo
  • About
  • Projects
  • Tech Specs
  • Details
  • Components
  • Specifications

Tech Specs: Details

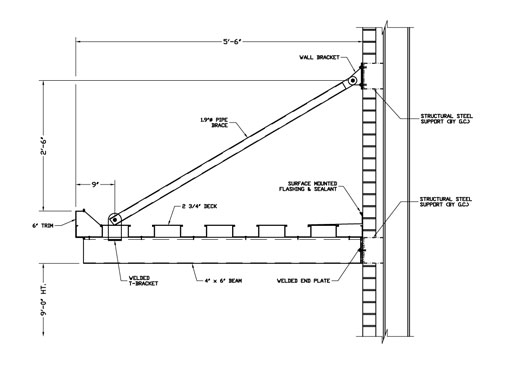
  • Concealed Connection
  • Subsurface Drainage
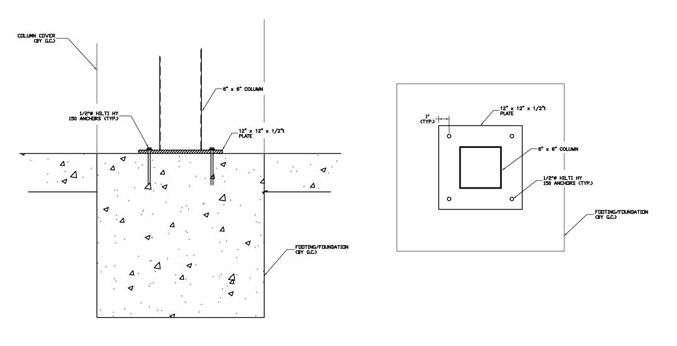
  • Base Plate Detail
  • Gable Canopy
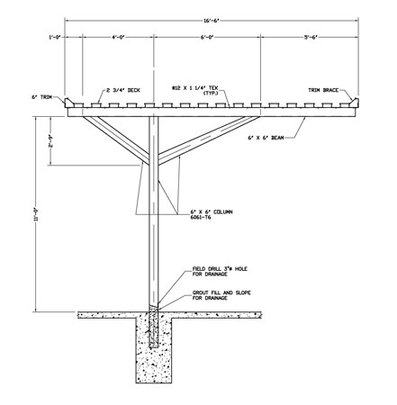
  • Over Head Supported Canopy, Beam
  • Over Head Supported Canopy, Front
  • Over Head Supported Canopy, Side
  • Light Fixture Attachment
  • Rain Cap Detail
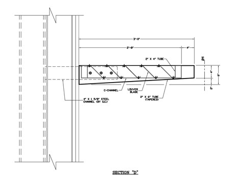
  • Sunscreen Canopy
  • Walkway L-Bent Canopy
  • Walkway T-Bent Canopy
  • Walkway U-Bent Canopy
  • Curved Walkway Canopy
Leed Logo
RDA Logo

AVAdek / Air-Vent
12130 Galveston Road BLDG 1, Webster, TX 77598
713-944-0988 / 800-777-4031